Золоуловитель ЗУ-2 в Карабулаке

Золоуловитель ЗУ 2
Золоуловитель ЗУ-2
Чертеж золоуловителя ЗУ-2
Золоуловитель ЗУ-2 чертеж
Котел с золоуловителем ЗУ 2
Котел КВр с золоуловителем ЗУ-2
Изготовление золоуловителя ЗУ 2
Изготовление золоуловителей ЗУ-2
Производство золоуловителей ЗУ 2
Производство золоуловителей ЗУ-2
Устройство золоуловителя ЗУ 2
Устройство золоуловителя ЗУ-2
Золоуловитель ЗУ 2
Чертеж золоуловителя ЗУ-2
Котел с золоуловителем ЗУ 2
Изготовление золоуловителя ЗУ 2
Производство золоуловителей ЗУ 2
Устройство золоуловителя ЗУ 2
Цена
по запросу
От 0 ₸ с доставкой до г.
Логотип WhatsApp Связаться
по WhatsApp
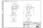
Золоуловитель ЗУ-2 представляет собой горизонтальный циклон, предназначенный для сухой инерционной очистки газов твердотопливных котлов от летучей золы.

Технические характеристики

МаркаЗУ-2
Тип циклонаЗолоуловитель
ВидЗУ
КПД80 %
Производительность8000 м³/ч
Аэродинамическое сопротивление700 (70) Па (мм. вод. ст.)
Допустимая температура газов на входе до250 °С
Сечение входного отверстия450х800 мм
Диаметр выходного отверстия490 мм
Объем бункера накопителя1.2 м³
Габаритные размеры: длина*ширина*высота1170х1175х2870 мм
Направление газового потокалевое
Масса370 кг
Применяемость1.7-1.86 МВт
БрендKVZR

Промышленный золоуловитель ЗУ-2 в Карабулаке

Золоуловители ЗУ-2 Карабулак устанавливаются в котельной сразу за котлом, перед дымососом. Пылеуловители могут эксплуатироваться вне помещения котельной под навесом при температуре окружающего воздуха от -60 °С до +40 °С. При такой эксплуатации циклон золоуловитель утепляют теплоизоляционными материалами.

Золоуловитель ЗУ-2 представляет собой горизонтальный циклон, предназначенный для сухой инерционной очистки газов от летучей золы (более 50 мкм) с максимальной температурой 260 °С.

По расположению оси очищаемого потока газа золоуловители ЗУ 2 относят к типу горизонтального циклона. Дымовой газ поступает из выходного отверстия котла во входное отверстие золоуловителя ЗУ-2 и движется между криволинейными стенками корпуса. Под действием гравитационных сил из потока очищаемого газа выделяются твердые частицы золы и сажи, которые накапливаются в бункере сборнике расположенного внизу золоуловителя. Зола удаляется снизу через шибер. Очищенные дымовые газы отводятся из пылеуловителя по патрубку через круглое выходное отверстие на боковой стенке, далее поступают в газоходы котельной и через дымовую трубу удаляются наружу котельной.

В комплект поставки золоуловителя ЗУ-2 входят:

  • бункер-накопитель
  • корпус золоуловителя.

Золоуловитель ЗУ-2 применяется для улавливания золовых отложений после водогрейных котлов КВр и КВм мощностью до 1.45 МВт.

Купить золоуловитель ЗУ-2

Для того чтобы купить золоуловитель ЗУ-2 в Карабулаке, вы можете оформить заявку в отделе сбыта по телефону +7-7172-69-59-73, либо оформить заявку онлайн. Наши менеджеры дадут консультацию по подбору вспомогательного оборудования для выбранных вами моделей и рассчитают стоимость доставки до вашего региона.

Похожая продукция

Золоуловитель ЗУ 1
Цена 820 440 тг.
Золоуловитель ЗУ 1 1
Цена 343 440 тг.
Золоуловитель ЗУ 1 2
Цена 464 280 тг.
Золоуловитель ЗУ 2 1
Цена по запросу
Золоуловитель ЗУ 2 2
Цена по запросу

Сертификаты товара

Сертификат на золоуловители (циклоны)
Сертификат на золоуловители (циклоны)

Опросные листы

Все опросные листы
Опросный лист на циклоны
Заполнить опрос
Опросный лист на опоры циклона
Заполнить опрос

Собственное производство

Котельный завод производит
  • Паровые котлы от 300 кг до 2.5 тонны пара в час
  • Промышленные водогрейные котлы от 150 КВт до 4 МВт на всех видах топлива
  • Механические топки ТШПМ, шурующая планка и ТЛПХ, ленточное полотно прямого хода
  • Циклоны для очистки воздуха и дымовых газов для производств и промышленных отраслей
  • Транспортеры и системы топливоподачи и шлакоудаления
Подробнее о производстве
Собственное производство
Смотреть видео
с производства